Public Work
My current role focuses on designing outdoor environments that serve diverse communities, emphasizing functionality, sustainability, and accessibility. At the City of Mississauga, I collaborate with Project Managers to conduct on-site field reviews, ensuring construction compliance and high-quality project outcomes. I contribute to developing master plans, construction drawings, and 3D renderings for park projects, effectively communicating designs to the public and fostering community engagement. These projects require balancing stakeholder needs while promoting environmental stewardship and enhancing public spaces to benefit the community.
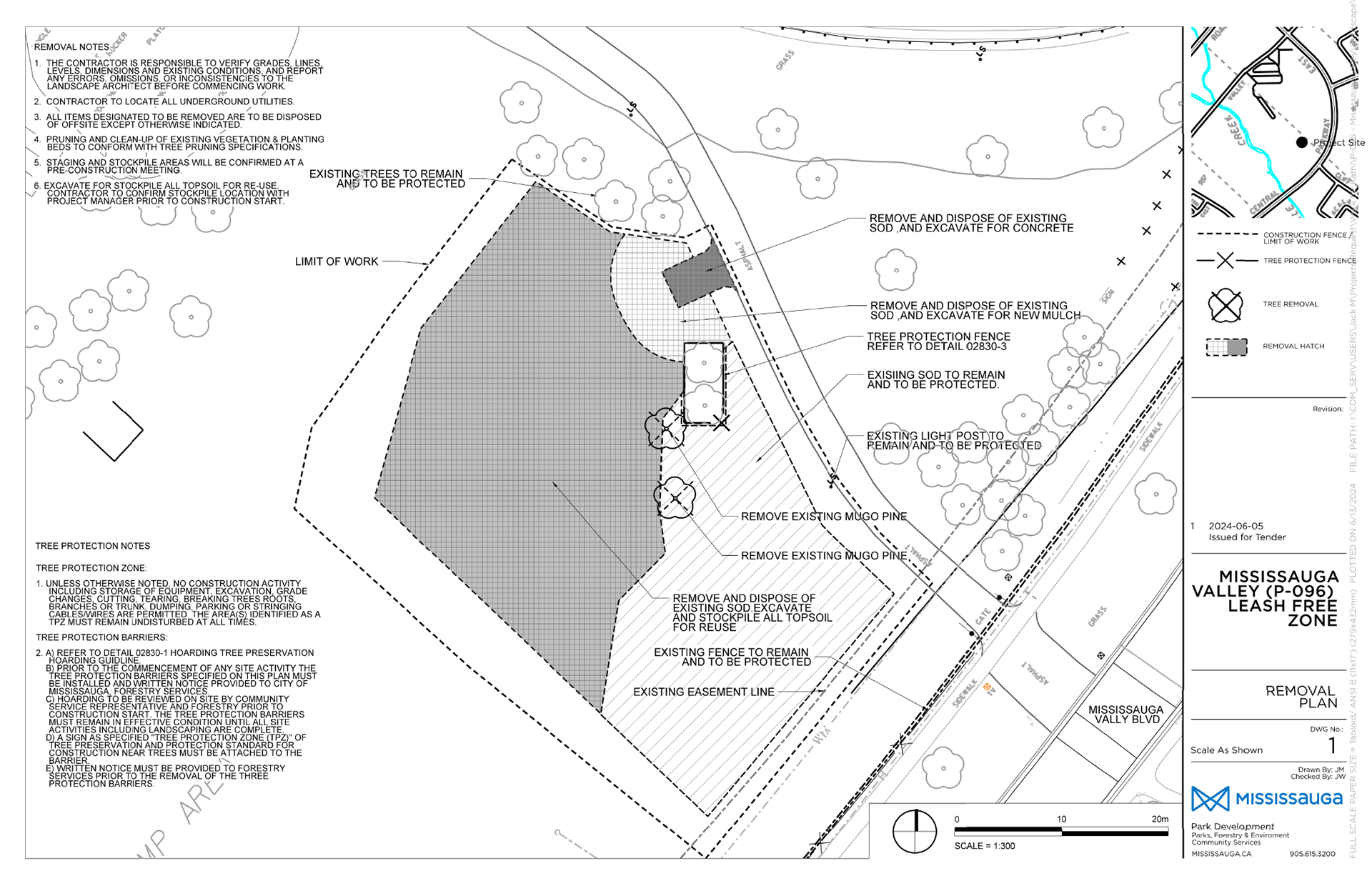
PROJECT OVERVIEW
Project: Leash Free Dog Park
Role: Landscape Architect Assistant
Tools: Adobe Creative Cloud, MicroStation





PROJECT OVERVIEW
Project: Beach Volleyball Court
Role: Landscape Architect Assistant
Tools: Adobe Creative Cloud, MicroStation






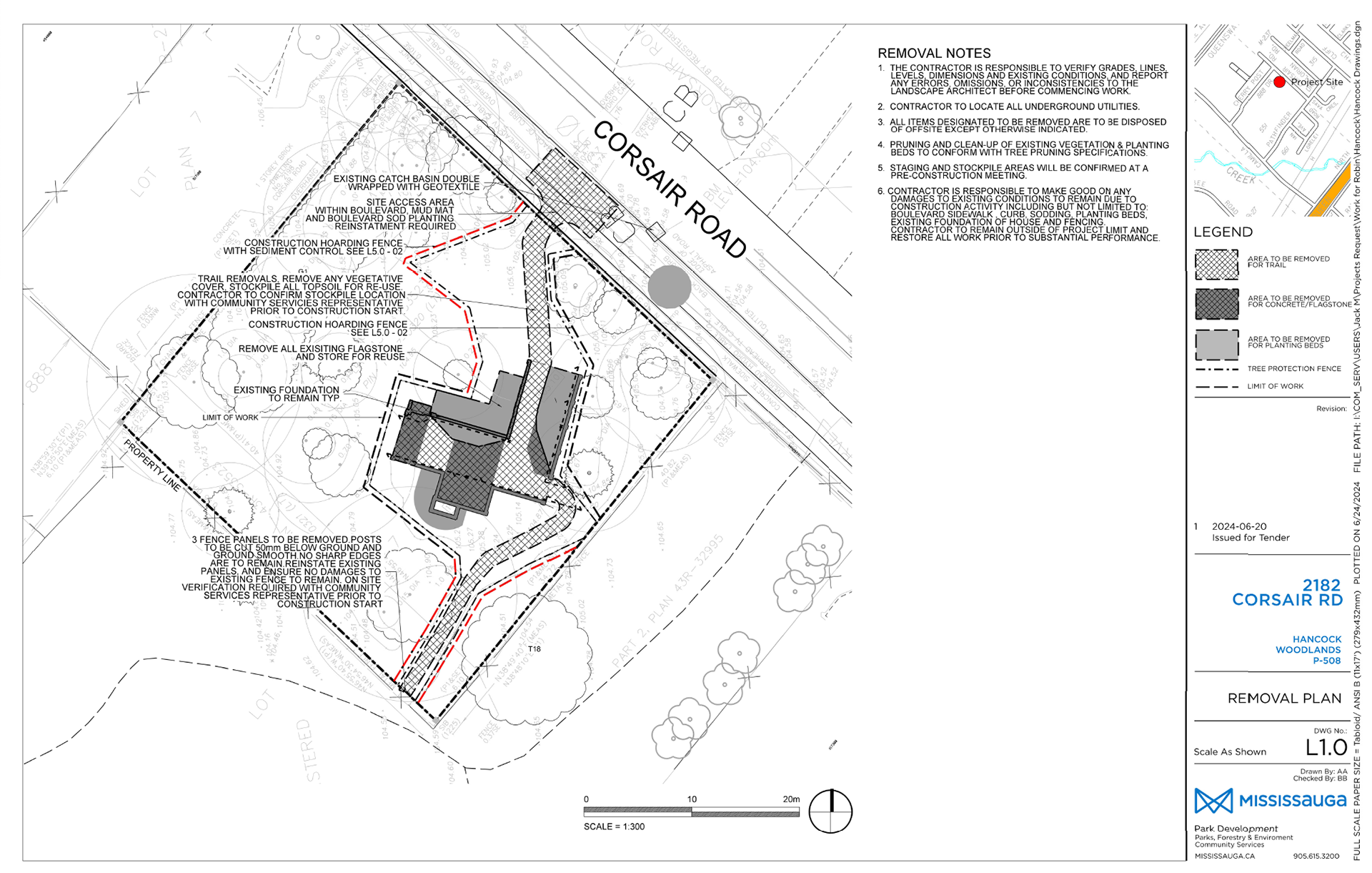
PROJECT OVERVIEW
Project Type: Hancock Park Tender
Role: Landscape Architect Assistant
Tools: MicroStation











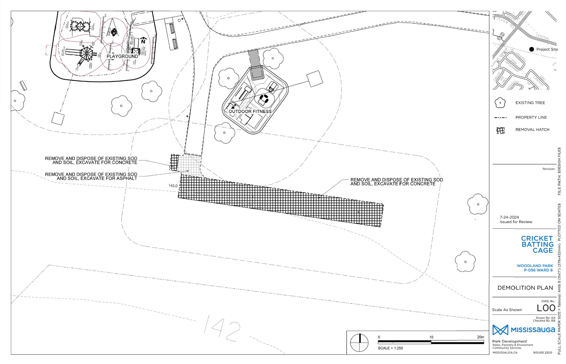
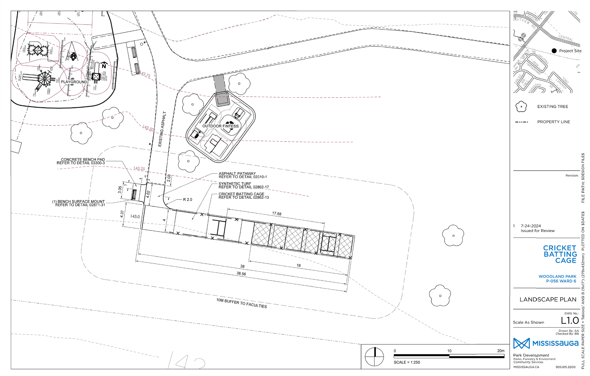
PROJECT OVERVIEW
Project Type: Cricket Batting Cage
Role: Landscape Architect Assistant
Tools: MicroStation



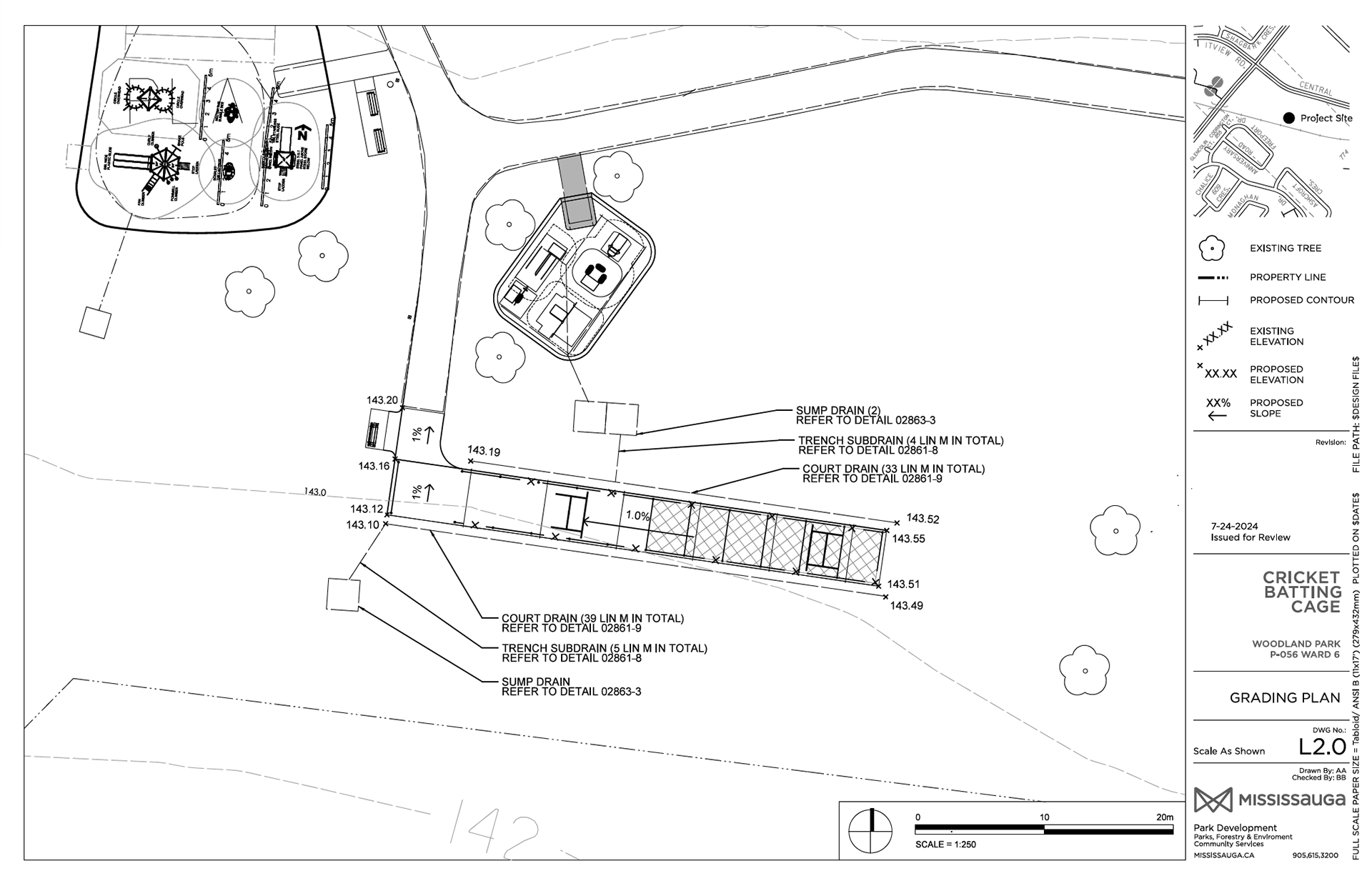
PROJECT OVERVIEW
Project Type: Council Proposal Pitch, 3v3 Basketball Court
Role: Landscape Architect Assistant
Tools: Adobe Creative Cloud, MicroStation, SketchUp






PROJECT OVERVIEW
Project Type: Various Concepts For Proposal & Stakeholder Buy-In
Role: Landscape Architect Assistant
Tools: Adobe Creative Cloud, MicroStation




